Схема и сборка автомата для мягкой сварки
Существуют проверенные схемы аппаратов с выпрямителями. Такие модели работают на постоянном токе. Они характеризуются более высокими эксплуатационными качествами, чем «переменники». Но и их также необходимо настраивать и доводить. Схема агрегата была несколько усовершенствована. Внесенные в состав схемы изменения позволили сделать сварочный процесс более мягким. Непосредственно принципиальная схема такого агрегата показана на следующем изображении: Рис. 3.
В состав аппарата включен конденсатор С1. Он размещается между отрицательным и положительным проводом выпрямленного тока. Применяется электролитический конденсатор на 15000 мкФ. Используйте устройство, рассчитанное на работу при напряжении в 100 В.
Благодаря такому конденсатору будет обеспечиваться надежный и одновременно плавный поджог дуги. В случае если вы ограничены в финансах или не можете найти подобный конденсатор, замените его на С1 = 50 мк х 160 В. Только в данном случае нужно устанавливать конденсатор уже в цепь положительного полупериода тока.
Чтобы процесс сварки проходил как можно более безопасно и во время него не возникало ни каких серьезных проблем, следует разобраться с тем, как подключить сварочный аппарат. Для этого требуется учесть несколько основных факторов, таких как место расположения. Тип аппарата, место нахождения вентиляции и прочее. Вентиляция является одним из самых важных моментов при размещении инвертора, так как они сильно подвержены перегреванию
Также нужно обратить внимание на контакт с пылью. Таким образом, подключение сварочного аппарата может стать непростым процессом для новичков
Подключение сварочного аппарата начинается с проверки параметров сети. Оно должно совпадать с тем, которое указано на корпусе техники, так как в ином случае ее нельзя будет использовать. Здесь необходимо соблюдать устройства правильных соединений. Тут необходимо использовать заземление и провода фазы, которые могут состоять из одной фазы или двух фаз и нейтрали.
Если в модели имеется функция самостоятельного регулирования входного напряжения, то ее следует поставить в то положение, значение которого будет соответствовать напряжению в сети. Для фиксации положения, как правило, используется закрепляющий винт.
Аппарат в сеть подключается при помощи обыкновенной штепсельной вилки. Она должна быть в исправном состоянии и соответствовать температурным нормам, так как во время работы будет происходить нагрев. В вилке должно быть заземление, к которому подключается специальный кабель. Также нужно соединить кабель «земли» с соответствующей клеммой. Соединение должно происходить недалеко от будущего шва, но на безопасном расстоянии. Для закрепления на металлической поверхности используется специальный зажим.
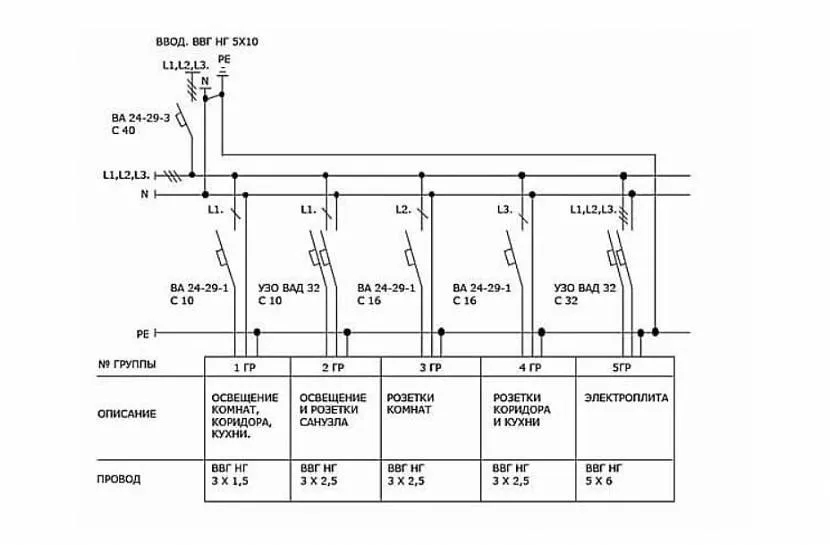
Разбивка на группы
Перед тем, как распределить нагрузку по фазам в частном доме, займитесь разбивкой отдельных линий вышеупомянутых энергопотребителей. На этом этапе необходимо подготовить отдельную линию электропроводки для розеток в каждую комнату и отдельно для света.

Проводка коттеджа с распределённой нагрузкой напряженияИсточник samelectrik.ru
Верное распределение нагрузки по фазе в частном доме выполняется прокладкой отдельной магистрали к самым мощным энергопотребителям из вышеупомянутого списка
Для наглядного и понятного разбора ситуации, обратите внимание на приведённую чуть выше план-схему
Чертёж показывает, как распределить нагрузку по фазам в частном доме и разбить потребителей на группы. Вводным кабелем, идущим от счётчика, здесь выступает ВВнг 5*10 (5 жил с сечением 10 мм2). Защита от перегрузок и коротких замыканий возложена на автомат ВА 40 А.
- К первой группе (фаза L1) подключаются световые приборы. В качестве защиты используется автомат на 10 А. кабель для протяжки линий: ВВГнг 3*1,5 мм2.
- Второй группой объединены потребители, подключенные к розеткам ванной и санузла. В качестве автоматического выключателя здесь установлено устройство защитного отключения (УЗО 10А-10mA). Марка кабеля, который здесь используется ВВГнг 3*2,5 мм2, не менее. Подключается она также на фазу L1.
- Третья группа потребителей – розетки, установленные в остальных комнатах (гостиная, спальные, рабочий кабинет, кладовая, гардеробная). Линия подключается на фазу L2 с проводом, сечение которого не менее 2,5 мм2. Защита оборудования и людей возлагается на автомат 16 А.
- К четвёртой группе потребителей относят розетки кухни и коридора. Запитываются через фазу, обозначенную как L3. Подключается по принципу, аналогичному тому, который использовался для третьей группы: трёхжильный кабель в 2,5 «квадрата» и 16-ти амперный автомат.
- Пятой группой является провод, идущий на электроплиту. Подключается на 3 фазы с нулём и обязательным заземлением. Кабель здесь используется марки ВВГнг 5*6 мм2, защитное устройство: УЗО 32 А-32mA.
Пример разводки по одному этажу
Рассмотрим пример технологической схемы для 1-го этажа коттеджа. Такой вариант ещё одно верное решение того, как распределить нагрузку по фазе в частном доме. Этот вариант связан с тем, что максимальное количество энергопотребителей сконцентрировано именно на этом этаже.

Схема разводки по фазам для одноэтажного коттеджаИсточник ingenernie-sistemi.ru
Для более наглядного понятия того, как распределить нагрузку по фазам в частном доме, приведена следующая план-схема. Такой проект является необходимым при прокладке новой линии, строящегося или ремонтирующегося коттеджа. В дальнейшем изображение значительно облегчит поиск возможной неисправности, внесение изменений или добавление новых точек.

План-схема разбивки электропроводки по группам энергопотребителейИсточник ingenernie-sistemi.ru
В чем отличие трехфазного напряжения от однофазного
Питание всех бытовых потребителей осуществляется по четырём проводам от трёхфазной сети — три фазных (линейных) L1, L2 и L3 и один нейтральный (нулевой) проводник N, а в квартиры подводится однофазное напряжение, для которого необходимы только два проводника — нулевой и фазный.
Переменное напряжение в разных фазах сдвинуто относительно друг друга на 120° для получения вращающегося магнитного поля в электродвигателях и уменьшения тока в нейтральном проводе.
Кроме количества проводников у трёхфазной сети имеются и другие особенности:
- Напряжение в сети. В однофазной схеме есть только одна величина напряжения — между фазой L и нейтралью N, а в трёхфазной сети имеется два напряжения, отличающиеся по своему значению. Это фазное L-N, равное 220 Вольт, и линейное, между любыми двумя фазными проводами L1-L2, L2-L3 или L1-L3, равное 380 Вольт. Поэтому один из способов, как из 380 сделать 220 Вольт, это просто подключить электроприбор к нулю и фазе.
- Различное сечение проводов. В однофазной электропроводке все провода имеют одинаковое сечение и рассчитываются на полный ток потребителя, а в трёхфазной сети по нейтральному проводнику протекает только уравнительный ток. Из-за этого нейтральная жила имеет меньшее сечение по сравнению с фазными, но при этом нагрузку по фазам необходимо распределять максимально равномерно.
- Разное количество полюсов у автоматических выключателей. В однофазной сети достаточно отключать только фазный проводник, поэтому допускается установка однополюсного автомата (кроме вводного). В трёхфазной нужно отключать все фазы одновременно, из-за чего необходима установка трёхполюсного выключателя.

Принцип работы
Когда электрод кратковременно касается места будущего соединения, в этом месте проскакивает искра (возникает пробой) в зазоре из воздуха. С этого и начинается, непосредственно, сварка. Сварщик должен успеть убрать разогретый конец, чтобы тот не прилип к металлической поверхности. Одновременно, нужно удерживать такое минимальное расстояние между электродом и металлом, которое позволяет сохранить электрическую дугу.
Электрическая дуга – это достаточно длительный электрический разряд, возникающий между областью будущего сварного шва и концом электрода. Область сварки еще называют дуговой зоной. На катодной области образуется температура свыше 30000С. При этом разность потенциалов остается сравнительно небольшой, всего 20 – 25 В.

Во время образования дуги вначале происходит пробой воздушного зазора электронами. После, в доли секунды, происходит стабилизация процесса в промежутке дуги. Далее наступает ионизация электронами молекул газа, в результате чего появляется ионная проводимость. Горение дуги стабилизируется при помощи плавящейся и испаряющейся обмазки электродов.

Во время сварки, под влиянием высокой температуры, электрод начинает плавиться. На его конце появляется капля из расплавленного металла: она отрывается и падает на металлическую поверхность детали. На металл переносится в пределах 95% общей массы электрода, остальная часть обращается в пар и брызги. Сила тока, диаметр электрода, длина дуги и другие факторы – влияют на скорость образования капель и их размер. Оболочка, которой покрыты электроды, образует шлак для скрытия капель металла. В результате, капли металла, проходя через дугу, не замыкают дуговой промежуток.
Настройки силы тока и диаметр электрода
Думаю все уже успели понять, что диаметр электрода непосредственно исходит из толщины изделия металла. Как было написано выше по тексту. Толщина=диаметру.
Пример: когда работник должен сварить деталь, толща которой будет от 2 миллиметров до 8 миллиметров, тогда подбираются электроды диаметром от 2,5 миллиметров до 5 миллиметров.
Этого Вам будет предостаточно для работы. А как же сила тока? Ответ на поверхности.
Вы будете самостоятельно подбирать значение, это зависит от плотности металлического изделия с которым происходит работа. Самым универсальным значением будет 80 Ампер. Оно хорошо подойдет для новичков.
Когда работник применяет 4-х миллиметровый диаметр электрода сила тока будет составлять 120 Ампер- 200 Ампер. Это один из распространенных диаметров электродов. Этот диаметр могут использовать специалисты своего дела и новички по сварке.
Выполнение подключения оборудования для сварочных работ
Принципиальная электрическая схема соединения первичных обмоток сварочного аппарата на напряжение: а) 220 В; б) 380 В (вторичная обмотка не указана).
По своей сути, сварочный аппарат является источником инверторного сварочного тока и сварочной дуги. Понятно, что эта дуга возникает между электродом и металлом. А сам аппарат для сварки выступает как преобразователь. Для определения допустимой мощности оборудования для типа электрической проводки в помещении, нужно умножить значение напряжения в сети на максимальное значение тока, которое указано на автомате вводного щитка агрегата для такого рода работ. Для подключения самого агрегата на 380 В к нему надо правильно подключать выходящие контакты.
Важно установить заземление во избежание поражения электрическим током при выполнении сварочных работ. Схема подключения оборудования для сварочных работ, который используется в быту будет следующей:. Схема подключения оборудования для сварочных работ, который используется в быту будет следующей:
Схема подключения оборудования для сварочных работ, который используется в быту будет следующей:
- Определить необходимую мощность устройства для выполнения сварки в соответствии с тем, что будет подвергаться сварке.
- Используя ручку регулятора тока, отрегулировать положение сердечника трансформатора. Этими действиями уменьшается или увеличивается сила тока.
- При необходимости установите переключатель на корпусе агрегата в положение 380 В
- Два питающих конца подсоедините к «фазе», а третий конец — к «нулю».
Чтобы правильно и безопасно использовать сварочный аппарат, необходимо обеспечить его подключение согласно всем особенностям обращения с этим оборудованием
Важно правильно выполнить подключение сварочного аппарата
Внимание надо обращать на любые мелочи, включая выбор питающего кабеля для устройства. Для работы со сварочным аппаратом необходимо иметь опыт, так как оборудование это потенциально опасное, начинать работу без опыта и защиты нельзя
Особенности работы трехфазного сварочного аппарата

Сварочные аппараты на 380 вольт распространены в производстве и строительстве из-за мощности и неприхотливости. Использование трехфазных устройств позволяет работать с электродами больших диаметров и металлами максимальной толщины.
Сварка по сравнению с однофазными аппаратами получается более мягкой. При работе в составе производственных линий также используется трехфазное оборудование.
Виды трехфазных устройств
Трехфазные сварочные аппараты бывают трех видов:
- трансформаторные;
- выпрямительные;
- инверторные.
Сварочное оборудование первого вида в основе имеет трехфазный трансформатор. Первичная обмотка состоит из трех обмоток соединенных звездой, а вторичная понижающая обмотка соединяется треугольником.
Если для сварки используется переменный ток, то с каждой фазы вторичной обмотки отдельным проводом к электроду через дроссель подается пониженное напряжение. По сравнению с однофазным сварочным трансформатором сварка получается более мягкой, электрическая дуга становится стабильней, просадка напряжения меньше.
Выпрямительные аппараты на выходе вторичной обмотки имеют три полумостовые схемы собранные из мощных диодов. Как и в первом случае с каждого выпрямителя ток подается на сварочный электрод.
Пульсации по сравнению с выпрямителем на одной фазе значительно меньше, соответственно сварочный ток более стабилен, что сказывается на качестве сварки.
В инверторах на три фазы при одинаковой мощности сварки можно использовать менее мощные диоды и транзисторы, но это практически так не делают. Наоборот применение трехфазного напряжения позволяет получать аппараты большой мощности при малых габаритах и массе.
Преимущества и недостатки
Все трехфазное оборудование для сварки относится к категории профессиональных устройств. Многие из них способны производить сварку в непрерывном режиме, то есть ПВ равно 100%. На строительстве трехфазные трансформаторные и выпрямительные сварочные аппараты до сих пор не имеют альтернатив.
Они не боятся пыли, грязи, работают при низких температурах, что противопоказано инверторам. Однофазные приборы трансформаторного типа тоже могут работать в таких же условиях, но у них мощность меньше и пульсации тока больше.
Соответственно, они не могут сравниться с трехфазными устройствами по качеству сварки, диаметру электродов и толщине свариваемого металла.
Использование трехфазного тока в инверторах, тоже имеет свои преимущества. Применяя одинаковую элементную базу, получают более мощный прибор с большими сварочными токами, что позволяет работать практически с любыми изделиями.
Общие сведения
В чем разница между сварочными аппаратами и бытовыми? Первые, трехфазные, работают на напряжении 380В. Такие агрегаты поддаются ремонту и неприхотливы в эксплуатации, поэтому они зачастую применяются на новых производствах. Работая с промышленным аппаратом для сварки, возможно соединить детали любой толщины и использовать при этом электроды любого диаметра.
Преимущество таких агрегатов в том, что мы получаем большую мощность не увеличивая при этом силу тока. Поэтому процесс сваривания проходит намного мягче и получается в результате более качественным трехфазным, нежели однофазным аппаратом.
Преимущества
Итак, мы теперь знаем, что промышленные сварочные аппараты относятся к трехфазному оборудованию. И это их основная характеристика, от которой мы будем отталкиваться при сравнении промышленного аппарата с другим оборудованием.
Для начала, любой трехфазный аппарат автоматически относят к классу профессионального оборудования. Такие сварочники могут работать непрерывно, их КПД близко к 100%. А этого нельзя добиться при применении бытовых или полупрофессиональных аппаратов. На некоторых производствах это достоинство играет главную роль. Поскольку частые перерывы в работе чреваты потере прибыли.

Трехфазные трансформаторы и выпрямители не чувствительны к условиям работы. Они могут пылиться или неправильно храниться, но все равно исправно выполнят свою задачу. Инверторы и полуавтоматы более капризны в этом плане из-за встроенных микросхем, но при наличии пыле- и влагозащищенного корпуса и они могут работать в любых условиях.
Опытные мастера наверняка возразят, что обычный однофазный трансформатор тоже неприхотлив. И будут правы. Только вот частота пульсации тока на однофазном аппарате гораздо выше, поэтому качество сварных швов заметно хуже. В сравнении с трехфазным трансформатором, конечно.
Также стандартный стационарные однофазный трансформатор или выпрямитель не способен варить металлы любой толщины и применять толстые электроды. А вот трехфазные аппараты поистине универсальны и применяются при сварке любого уровня сложности.
Особенности подключения в зависимости от типа аппарата
Рисунок 3. Сварочный аппарат типа трансформатор может работать в широком диапазоне сварочного тока. Его рекомендуется подключать к щитку.
Порядок подключения сварочного аппарата во многом зависит от особенностей его устройства. Так, в случае применения двухфазной модели подключение проводов будет выполняться в индивидуальной последовательности. Первый провод нужно будет пустить на фазу, второй — к нейтральному выходу, а третий провод подключить на защиту. Если же вы будете работать с трехфазным сварочным аппаратом, то особой последовательности можно не придерживаться. Главное, чтобы 2 первых провода были подключены к любым фазам, а третий провод — к защите.
Очень важно знать основные особенности подключения аппарата типа трансформатор. Типичный представитель показан на рис
3. В случае применения такого оборудования подключение выполняется в соответствии с рядом особых правил. Трансформаторы могут работать в широком диапазоне сварочного тока. При включении некоторых из них в розетку образуется достаточно мощный бросок тока, который может сжечь розетку и выключить защитный автомат. Поэтому рекомендуется подключать такой сварочный аппарат к щитку. Подробная схема подключения сварочного трансформатора показана на рис. 4.
Обязательно выполняйте эти правила во время работы. При их несоблюдении вы рискуете получить травмы, которых можно было бы с легкостью избежать. В результате неправильного подключения сварочного аппарата можно получить удар током, возможны снижение качества сварки, возгорание и т.д.
Основные рекомендации и техника безопасности
Прежде чем вы соберетесь подключить сварочный аппарат, обязательно удостоверьтесь в том, что частота и напряжение, указанные на корпусе оборудования, совпадают с аналогичным показателем в сети. Подключение такого оборудования требует устройства правильных соединений. Для этого используются следующие провода: фаза или же 2 фазы в сочетании с нейтралью и провод для заземления, который обычно имеет зеленый или желтый цвет.
Положение электрода при сварке.
В случае если выбранная вами модель сварочного аппарата дает возможность самостоятельно устанавливать напряжение, следует зафиксировать переключатель в положении, которое соответствовало бы напряжению в вашей сети. Положение фиксируется при помощи блокирующего винта.
Для подключения сварочного аппарата используется штепсельная вилка
Очень важно, чтобы она соответствовала установленным нормативам термопропускной способности. Эта вилка обязательно должна иметь наконечник, обеспечивающий заземление
Именно к нему и подключится соответствующий кабель. Такую вилку нельзя включать в обыкновенную домашнюю розетку. Для подключения подходит розетка с плавким предохранителем. Подходит и автовыключатель.
Вам нужно будет соединить обратный кабель «земля» с соответствующей клеммой. Соединять нужно на наименее возможном расстоянии от будущего шва. Для крепления кабеля-держателя к выдающемуся фрагменту электрода используется специально предусмотренный зажим.
Из-за плохого контакта аппарат не будет работать в полную силу и быстро выйдет из строя.
Рисунок 1. Схема подключения сварочного аппарата: 1-сварочный пост; 2—трехжильный шланговый кабель; 3 — трансформатор; 4-регулятор; 5-заземляющие зажимы корпуса агрегата; 6 — одножильный шланговый кабель; 7-электродержатель; 8 — провода заземления.
Существует достаточно много схем, в соответствии с которыми выполняется подключение сварочного агрегата. Наиболее распространенная схема подключения приведена на рис. 1.
- 1 позиция — это сварочный пост;
- номером 2 обозначен трехжильный шланговый кабель;
- 3 — трансформатор;
- 4 позиция — регулятор;
- номер 5 — заземляющие зажимы корпуса агрегата;
- 6 — одножильный шланговый кабель;
- 7 позиция — электродержатель;
- номер 8 — провода заземления.
Запомните и выполняйте все эти правила при подключении сварочного аппарата, чтобы избежать травм и прочих малоприятных последствий. В результате нарушения системы безопасности сварочного аппарата может произойти возгорание или удар током. В случае поломки какого-либо из питающих кабелей его нужно незамедлительно заменить. Лучше всего доверить эту работу профессионалам. Любые ремонтные и профилактические работы можно выполнять только после того, как сварочный аппарат будет отключен от сети.
Во время подключения сварочного аппарата следует обязательно проверить качество стационарно уложенного, а также гибкого проводов. Проверьте их заземление, целостность и изоляцию на соответствие установленным стандартам. Не стоит слишком сильно экономить на заземлении. Лучше всего использовать для него гибкий провод из меди. В случае обнаружения скруток, трещин и других дефектов провод нужно заменить. Использование поврежденных проводов приводит к перегреву и может стать причиной поломки сварочного аппарата. Немаловажным фактом является необходимость размотки проводов. Если пренебречь этим требованием, возникнет индуктивность, а сопротивление снизится.
Напряжение для сварочных аппаратов не нормируется, поэтому обращайте внимание на характеристики именно той модели, с которой вам предстоит работать. При сборке такого оборудования ему задается определенный уровень напряжения
Значение сопротивления при этом не учитывается.
Это интересно: Сварочный полуавтомат своими руками: схема и этапы сборки
Подключение трехфазного двигателя к сети 220В
Подключение трехфазного двигателя к однофазной сети так же возможно, как и включение его в трехфазную сеть. Разница будет лишь в способе подключения и в выдаваемой мотором рабочей мощности. Она не сможет превышать 50% от максимального значения, достигаемого при питании от сети 380 Вольт, если соединить обмотки звездой. При подключении методом треугольника можно развить 70% от максимально возможной мощности. Поэтому, если питание подается от сети 220В, имеет смысл подключать электродвигатель только вторым способом.
Схема подсоединения мотора 380 на 220
При питании от 380 на каждую намотку приходится одна фаза. Но при подключении к 220 Вольт к двум обмоткам подключается фазный и нулевой провод, третья остается свободной. Для компенсации отсутствия третьей фазы запуск электродвигателя происходит через конденсатор.
Если запускается в ход маломощный мотор (не более 1500 Вт) без начальной нагрузки, то подключать можно лишь через рабочий конденсатор. От него идут два провода. Первый нужно соединить с нулем, а второй – с 3-ей вершиной треугольника.
При запуске мощного асинхронного двигателя (от 1500 Вт) или при пуске маломощного, но с начальной нагрузкой, подсоединяют его к 220В через рабочий и пусковой конденсаторы. Последний подключается параллельно первому. Он необходим для увеличения пускового момента, поэтому его включение происходит только в момент запуска мотора в ход.
Пусковой конденсатор включают в схему через кнопку, а подача питания в 220В происходит путем перевода специального тумблера в положение «включено», отключение – в состояние «выключено». Вместо тумблера можно воспользоваться кнопкой с двумя позициями. Тогда запуск будет следующим:
- Питание подается через тумблер или специальную кнопку;
- Нажимается кнопка пускового конденсатора;
- Она удерживается до тех пор, пока электродвигатель не разгонится;
- Кнопка пуска отпускается, отчего ее пружины размыкают цепочку конденсатора.
При включении электродвигателя в сеть 220 Вольт с реверсом для изменения направления вращения вала понадобится еще один тумблер. При смене положения один из выводов рабочего конденсатора будет соединяться то с фазой, то с нулем.
На рисунке выше предусмотрена схема подсоединения двигателя 380 к сети 220 с реверсом с пусковой кнопкой. Она актуальна, если мотор не набирает обороты с отсутствием пускового накопителя (он на рисунке находится справа).
Подбор конденсаторов
Емкость конденсаторов для подключения к 220В необходимо подбирать. В случае с рабочим накопителем это просто. Расчет его емкости происходит по формулам:
- Соединение треугольником: Ср=4800*I/U.
- Соединение звездой: Ср=2800*I/U.
Подбор пускового накопителя происходит опытным путем (смотрите видео). Обычно его емкость (Сп) больше в 2-3 раза по сравнению с Ср. Например: есть мотор с током в обмотках 2 ампера. При подсоединении намоток треугольником в сеть 220 Ср будет равен 25 мкФ. Тогда Сп будет варьироваться в диапазоне 50-75 мкФ. Но таких накопителей не найти в магазинах. Поэтому придется купит несколько с номинальной емкостью и соединить их параллельно. 25 мкФ можно получить из 2 по 10 мкФ и 1 по 5.
Если Сп будет меньше требуемого значения, то намотки статора будут перегреваться. Возможно даже плавление изоляционной оболочки. Если Сп будет больше требуемого, то нельзя будет развить достаточную мощность. Поэтому подбор начинайте с минимальной емкости (в примере это 50 мкФ), а затем ищите оптимальное значение путем добавления накопителей номинальной емкости.
Для запитывания двигателя от 220В подойдут накопители от 300В следующих типов:
- МБГЧ,
- МБПГ,
- МБГО,
- БГТ.
Вы можете узнать все характеристики накопителя (емкость, тип, рабочее напряжение), взглянув на его корпус.
Теперь вы сможете пользоваться трехфазным асинхронным электродвигателем, включая его к сети 220В или 380В в зависимости от того, какая линия проходит рядом. Чтобы лучше понять принцип подсоединения обмоток и фаз с их началами и концами, посмотрите видео.





























